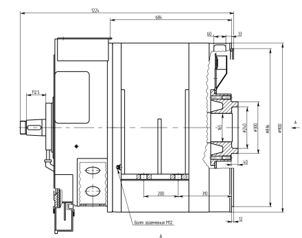
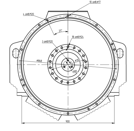
ГЕНЕРАТОР СИНХРОННЫЙ ТЯГОВЫЙ ТИПА ГСН 700/8
ГПИН.528254.002 ТУ
ГПИН.528254.002 ТУ
| Номинальная мощность, кВт | 700 |
| Номинальное напряжение (линейное) наименьшее, В | 510 |
| Номинальное напряжение (линейное) наибольшее, В | 850 |
| Ток номинальный наименьший, А | 546 |
| Ток номинальный наибольший, А | 870 |
| Частота тока, Гц | 120/126,67 |
| Ток возбуждения, А | 210 |
| Коэффициент полезного действия, %, не менее | 94,8/94,6 |
| Масса, кг, не более | 2500 |
